- Woonoppervlakte
- Circa 70 m²
- Inhoud
- Circa 233 m³
- Bouwjaar
- Gebouwd in 1976
- Aantal kamers
- 2 kamers (1 slaapkamer)
Bent u op zoek naar een leuk twee kamer appartement in een geliefde woonwijk? Een appartement met een toch wel flinke tuin op het Zuiden in plaats van een balkon? Let dan op: Buisman Makelaars biedt aan: Archipel 17-56, een ruim 2-kamer appartement van ongeveer 70m² met lekkere tuin, gelegen op de begane grond. Helemaal kant en klaar is het niet, maar hier is zeker een plekje van te maken waar u zich volledig thuis zult kunnen gaan voelen!
U woont in een, als kindvriendelijke en gewild bekendstaande woonwijk op loopafstand van het stadshart van Lelystad en het Centraal Station van Lelystad.
Interesse in dit leuke appartement? Neem dan, eventueel via uw NVM-aankoopmakelaar, contact met ons op voor het inplannen van een bezichtiging.
Indeling
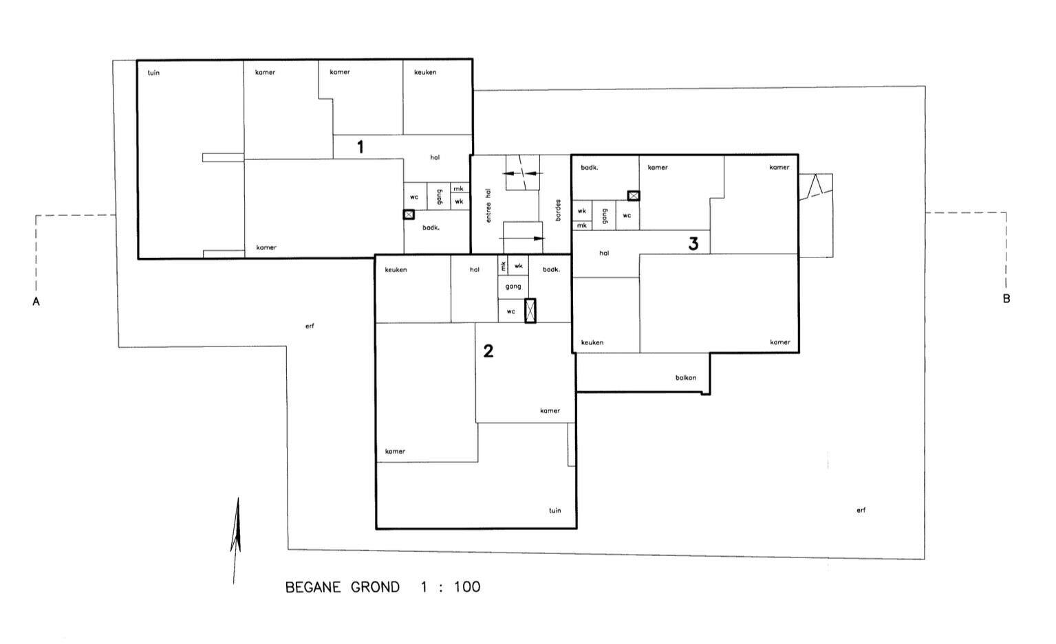
Algemene entree brievenbussen, intercomsysteem en bergingen (op -1). Vanuit de algemene hal is er direct toegang tot het appartement op de begane grond.
Entree appartement: Hal met meterkast, (berg)kast, toilet en toegang tot de deels betegelde badkamer welke is voorzien van ligbad (wordt ook gebruikt om te douchen), wastafelmeubel en wasmachineaansluiting; slaapkamer van ongeveer 18m² met een schuifpui naar de tuin; in standaard opstelling uitgevoerde keuken, welke is voorzien van de navolgende (inbouw) apparatuur: een afzuigkap (incompleet), gasfornuis met oven, vrijstaande koel-vriescombinatie alsmede de opstelling van de CV- ketel; woonkamer van ruim 25m² welke beschikt over een laminaat vloer en een deur naar de achtertuin.
Tuin: Vanuit zowel de slaapkamer als de woonkamer bereikt u de op het zuiden gelegen tuin. De tuin beschikt over bestrating en beplanting.
Prijs: € 275.000,00 kosten koper
Aanvaarding: snel mogelijk.
Bijzonderheden:
• Bouwjaar: 1976
• Woonoppervlakte: ca. 70m²
• Berging op -1: ca. 6m²
• Inhoud: ca. 233m³
• Servicekosten: € 144,19 per maand
• Via een schuifpui in de slaapkamer, maar ook in de woonkamer bereikt u de tuin
• Cv-ketel (Nefit Proline) bouwjaar 2018 , eigendom
• Energielabel: B, geldig tot 28 juni 2031
• Winkelcentrum "De Gordiaan" en station Lelystad zijn op ongeveer 5 fietsminuten gelegen
• Omdat de eigenaar hier niet zelf heeft gewoond, wordt de woning verkocht met een zogenaamde NON zelfsbewonings- clausule
• De as is where is clausule zal in de koopovereenkomst worden opgenomen
• Alle in deze tekst genoemde maten zijn circa maten, hier kunnen derhalve geen rechten aan worden ontleend
Meer informatie over deze woning? KIJK op BuismanMakelaars.nl of BEL (0320) 20 20 40
Deze woning bezichtigen? Neem uw eigen NVM-Aankoopmakelaar mee! Lees de volledige omschrijving
Overdracht
- Vraagprijs
- € 275.000 k.k.
- Status
- Verkocht onder voorbehoud
- Aanvaarding
- In overleg
Bouw
- Object type
- Benedenwoning (appartement)
- Soort bouw
- Bestaande bouw
- Bouwjaar
- 1976
- Soort dak
- Plat dak bedekt met bitumineuze dakbedekking
Oppervlakte en inhoud
- Woonoppervlakte
- 70 m²
- Inhoud
- 233 m³
- Externe bergruimte
- 6 m²
- Gebouwgeb. buitenruimte
- 8 m²
Indeling
- Aantal kamers
- 2 kamers (1 slaapkamer)
- Aantal badkamers
- 1 badkamer en 1 apart toilet
- Badkamervoorzieningen
- Ligbad en toilet
- Aantal woonlagen
- 1 woonlaag
- Gelegen op
- Begane grond
- Voorzieningen
- Natuurlijke ventilatie, schuifpui, en TV kabel
Energie
- Energielabel
- B
- Energielabel registratie
- 01-07-2021
- Verwarming
- Cv-ketel
- Warm water
- Cv-ketel
- Cv ketel
- Gas gestookt, eigendom
Buitenruimte
- Ligging
- In woonwijk
- Tuin
- Achtertuin
- Afmetingen achtertuin
- 40 m² (4,70 meter diep en 8,50 meter breed)
- ligging tuin
- Gelegen op het zuiden
Parkeergelegenheid
- Soort parkeergelegenheid
- Openbaar parkeren
VvE checklist
- Inschrijving KvK
- Nee
- Jaarlijkse vergadering
- Nee
- Periodieke bijdrage
- Nee
- Reservefonds aanwezig
- Nee
- Onderhoudsplan
- Nee
- Opstalverzekering
- Nee
Energieverbruik in Lelystad
Energielabel deze woning
Energielabel B
Publicatie energielabel: 01-07-2021
Stroomverbruik per jaar
(Gemiddelde appartement in Lelystad)
Gasverbruik per jaar
(Gemiddelde appartement in Lelystad)
* Cijfers zijn afkomstig van het CBS en bedoeld als indicatie en kunnen verschillen voor deze woning
Indicatie hypotheeklasten
Eigen inleg:
Spaargeld / overwaarde
Rente:
Laagste 10-jaars rente
Laagste 10-jaars rente
2,73% - Centraal Beheer Groen... - NHG
3% - Centraal Beheer Groen Lee... - 80%
Laagste 20-jaars rente
3,18% - Argenta Groen Hypothee... - NHG
3,39% - Argenta Groen Hypothee... - 80%
Laagste 30-jaars rente
3,35% - Argenta Groen Hypothee... - NHG
3,56% - Argenta Groen Hypothee... - 80%
Hypotheek:
Bruto maandlasten: € 0 p/m
Netto maandlasten: € 0 p/m
Hoe berekenen we dit?
Het rentepercentage is gebaseerd op de laagste 10 jaars vaste rente voor één hypotheekdeel. De vermelde rente (2.73% met NHG) is gecontroleerd op 17-11-2025. Deze berekening is gebaseerd op een annuïteitenhypotheek die volledig wordt afgelost, waarbij de maandlasten gedurende de gehele looptijd gelijk blijven. De werkelijke rente en netto maandlasten kunnen variëren, afhankelijk van uw persoonlijke situatie en de hypotheekverstrekker. Raadpleeg een financieel adviseur voor een nauwkeurige berekening en advies. Aan deze berekening kunnen geen rechten worden ontleend; het dient enkel als indicatie.
Documentatie
Kadastrale kaart
Leefomgeving
Plattegronden PDF
WOZ waarderapport
BAG uittreksel
Brochure
Bezoek onze website
Bezichtiging
Bod uitbrengen
Waardebepaling
Zoekopdracht
Alles downloaden
Zonnegrenzen bekijken
Op de kaart
Inwoners in Lelystad
Cijfers voor postcodegebied 8224
- Totaal aantal inwoners
- 7130 inwoners
- Mannen
- 50%
- Vrouwen
- 50%
Inwoners in Lelystad
Cijfers voor postcodegebied 8224
- tot 15 jaar
- 18%
- 15 tot 25 jaar
- 11%
- 25 tot 35 jaar
- 25%
- 45 tot 65 jaar
- 24%
- 65 en ouder
- 22%
Huishoudens in Lelystad
Cijfers voor postcodegebied 8224
- Eenpersoons zonder kinderen
- 42%
- Meerpersoons zonder kinderen
- 24%
- Huishoudens zonder kinderen
- 66%
Huishoudens in Lelystad
Cijfers voor postcodegebied 8224
- Huishoudens met één kind
- 10%
- Huishoudens met meerdere kinderen
- 24%
- Huishoudens met kinderen
- 34%
Woningen in Lelystad
Cijfers voor postcodegebied 8224
- Woningen voor 1945
- 1%
- Woningen tussen 1945 en 1965
- 1%
- Woningen tussen 1965 en 1975
- 39%
- Woningen tussen 1975 en 1985
- 52%
- Woningen tussen 1985 en 1995
- 2%
Woningen in Lelystad
Cijfers voor postcodegebied 8224
- Woningen tussen 1995 en 2005
- 3%
- Woningen tussen 2005 en 2015
- 2%
- Woningen na 2015
- 3%
- Huurwoningen
- 50%
- Koopwoningen
- 50%
Overige in Lelystad
Cijfers voor postcodegebied 8224
- Gemiddelde WOZ waarde
- € 165.000,-
- Personen onder de 65 met uitkering
- 12%
Overige in Lelystad
Cijfers voor postcodegebied 8224
- Adressen per km²
- 1973
- Stedelijkheid (schaal 1 op 5)
- 80%
Korte feiten over Lelystad
Lelystad is de hoofdstad van de Nederlandse provincie Flevoland. De stad ligt in Oostelijk Flevoland en is daarvan de grootste stad, maar de gemeente ligt deels ook in Zuidelijk Flevoland.
Buisman Makelaars
Indien u vragen heeft of u wilt een bezichtiging inplannen, dan kunt u gebruik maken van het formulier hiernaast. Er zal daarna op korte termijn contact met u worden opgenomen.
Contact opnemen
Over Buisman Makelaars
Buisman Makelaars is een dynamisch en toegewijd makelaardijbureau gevestigd in het hart van Lelystad. Dit bureau onderscheidt zich door zowel de aan- en verkoop van bestaande woningen als de verkoop van nieuwbouwprojecten te faciliteren, en biedt tevens NWWI-gecertificeerde taxatierapporten aan.
Als lid van de Nederlandse Vereniging van Makelaars (NVM) legt Buisman Makelaars de nadruk op continue professionele ontwikkeling en een grondige presentatie van uw vastgoed. Uw woning of appartement wordt prominent gepresenteerd op platforms zoals Funda, diverse sociale media en onze eigen website.
De makelaars van ons kantoor staan officieel geregistreerd bij het Vastgoedcert en het NRVT. Zij voldoen tevens aan alle vereisten voor permanente educatie volgens de NVM, Vastgoedcert en NRVT, waardoor ze constant op de hoogte blijven van de laatste ontwikkelingen op de woningmarkt.
Nieuwste reviews
-
Tjalk 42 42
Mijn partner en ik zijn meer dan tevreden met Buisman Makelaars. Ondanks onze onregelmatige werkroosters, kon er altijd iemand met ons mee n...
-
Neringweg 431
Paul is een top makelaar en Judith is ook zo geweldig. Zij regelt de alle papierwerk. Ik had een fijne contact en communicatie. Alles ging h...
-
Galjoen 25 12
Persoonlijke en dus betrokken makelaars. Kijken mee in je wensen en laten je niet in het ongewis. Communicatie verloopt soepel zelfs in de z...